熊本市|景色と植物に癒やされる、帰りたくなる家

BEFORE
AFTER

矢印のアイコンを左右にスライドするとBeforeとAfterが変化します

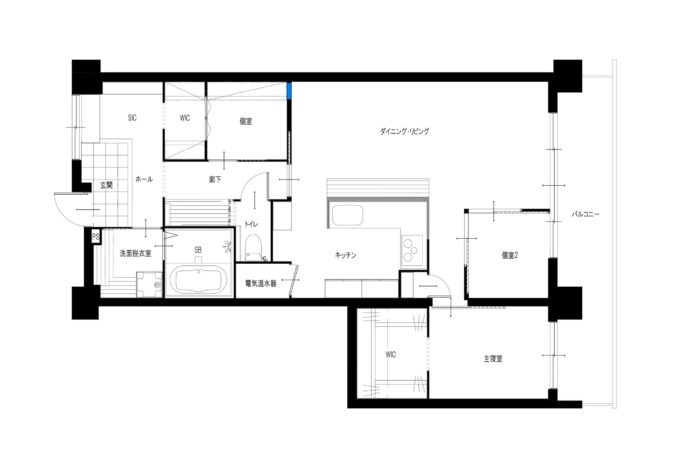
間取り図
3LDK→3LDK+シューズインクローク+ウォークインクローゼット
LDK
過ごす時間の長いLDKに広さを確保。絵が映える白地の壁も。
洋室
洋室とリビングを繋げ、広々としたLDKに。
キッチン
閉鎖的な空間から、L字で広々使えるキッチンに。景色を楽しみながら料理ができます。
洗面
洗面を廊下に出したことで、メイクスペースも十分な広い洗面に。
トイレ
陰影を楽しめる照明と消臭効果のあるタイルで落ち着いたトイレ空間を演出。
玄関
広さを確保したことで、座って靴の脱ぎ履きができるように。
廊下
玄関には収納を設け、外で使う物などをまとめて入れられるように。
家族構成 1人暮らし
カテゴリー マンション
築年数 築31年
リフォーム費用 1300万

リフォームのご要望

  • キッチンの閉塞感をなくし景色を見ながら料理をしたい
  • 独立した子どもたちが帰省した時の部屋を作ってあげたい
  • 玄関を広くして家族が集まりやすい家にしたい
  • 観葉植物を楽しめる空間にしたい

わくわくポイント

  • 植物とインテリア、絵が映える空間
  • 広々としたキッチン
  • リビングや玄関など、家族で使うスペースに広さを確保

施主さまのコメント

家に帰るたびに、「良い家だなぁ」と思っています。最初は、天井の躯体現しや内装の色の部分でどうなるのだろうと少し不安もありましたが、すごく素敵な家になりました。リノベーションをするきっかけとなったキッチンからの景色もすごく気に入っています。独立した娘も、自分も家を買ってリノベーションしたいと言っています。本当に素敵なお部屋、暮らしを作っていただいて、ありがとうございました。

設計士のコメント

お施主様の「好き」を随所に散りばめた、こだわり満載の住まいが完成しました。内装には深みのある濃い色のクロスを採用。完成直前まで「暗くなりすぎないか」とご不安な様子もありましたが、実際に家具やたくさんの観葉植物が並ぶと、グリーンの鮮やかさが一層引き立つ、落ち着きのある上質な空間に仕上がりました。

また、今の暮らしを楽しむだけでなく、その時々の気分に合わせて模様替えができるよう、LDKの広さをしっかり確保し配線計画にも余裕を持たせた間取り変更のリノベーションをしています。ご家族が集まる日も、お一人で景色を眺める時間も、常に心地よく過ごしていただける「変化を楽しめる家」となりました。

一覧にもどる