熊本市|居心地の良い幸せを作る、ジャパンディな家

BEFORE
AFTER

矢印のアイコンを左右にスライドするとBeforeとAfterが変化します

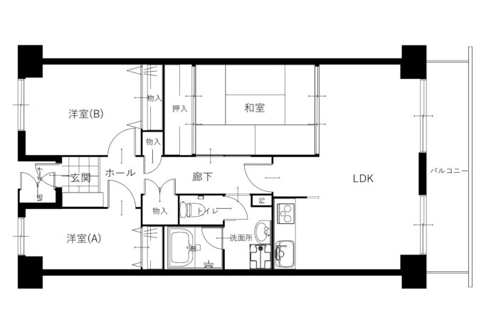
間取り図
3LDK→1LDK+W.I.C
LDK
対面キッチンに変更し、和室も繋げ広いLDKに。
和室
和室はリビングと繋げ広々と。小上がりにしたことで収納も確保。
キッチン
壁付けキッチンから対面キッチンに変えて、リビング全体が見渡せるように。
廊下
広く明るい玄関~廊下に。広くなったことでディスプレイコーナーも。
洗面化粧台
こだわりの詰まった造作洗面。お風呂の位置が変わったことで、洗面所の空間も広くなりました。
トイレ
タンクの手洗いを無くし、コーナーの空間を活用し別で手洗いを設置。照明にもこだわり落ち着く空間に。
W.I.C+ワークスペース
洋室をWIC兼ワークスペースに。ワークスペースは窓際で明るく集中できる環境。
家族構成 2人家族
カテゴリー マンション
築年数 築42年
リフォーム費用 1250万

リフォームのご要望

  • 居心地がよくリラックスできるリビング空間にしたい
  • 家族が共有で使えるワークスペースが欲しい
  • 家事や収納、動線を効率的にしたい
  • クローゼットは一カ所にまとめたい

わくわくポイント

  • 可変的な使い方ができる小上がり畳
  • 家事動線を考えた間取り変更
  • 温かなムードを作る間接照明

施主さまのコメント

元々住んでいた賃貸のお部屋は手狭でお客さんも呼べない状況でした。このままずっと賃貸で住み続けるのは家賃ももったいないと感じ、売り貸しがしやすいマンションの購入を決意。最初は新築マンションを買う予定でしたが、新築の決まった間取りや内装がしっくり来ず、せっかく購入するので自分達の好みのインテリアや間取りにして友人を呼べるようなお部屋にしたいという気持ちから、リノベーション会社に相談してみることになりました。
今では、好きなテイストに仕上がったリビングで過ごしたり、小上がり畳でダラダラ過ごすのがお気に入りの時間です。ワークスペースは在宅勤務の時やちょっとした読書の時などにとても便利で満足しています!

設計士のコメント

お打ち合わせ当初より、「リビングでゆったりとリラックスできる空間」をご希望されていました。 そこで、ご家族皆様が集まりくつろげるよう、小上がり畳スペースや間接照明をご提案いたしました。小上がりはロールスクリーンで仕切れば個室としても活用でき、将来的なご家族のライフスタイルの変化にも柔軟に対応できる可変性を持たせています。

また、ご夫婦ともに趣味に没頭される時間を大切にされていることから、WIC(ウォークインクローゼット)内にあえて書斎スペースを設けました。適度な「おこもり感」があり、周囲を気にせず集中して作業に打ち込める特別な場所となっています。

インテリアは、人気のジャパンディスタイルを採用。ホワイトと明るい木目を基調に、温かみのある空間を演出しました。 機能面では、水回りの家事を時短できる回遊動線を確保。窓がなく暗くなりがちな玄関には、採光タイプの建具を採用することで、隣接する洋室からの光を取り込む工夫も凝らしています。

お客様が選ばれた家具も空間と見事に調和しており、これから暮らしの中でさらに素敵な住まいへと育っていくのが楽しみです。

一覧にもどる