合志市|築53年。愛犬と健やかに暮らす平屋リノベ。

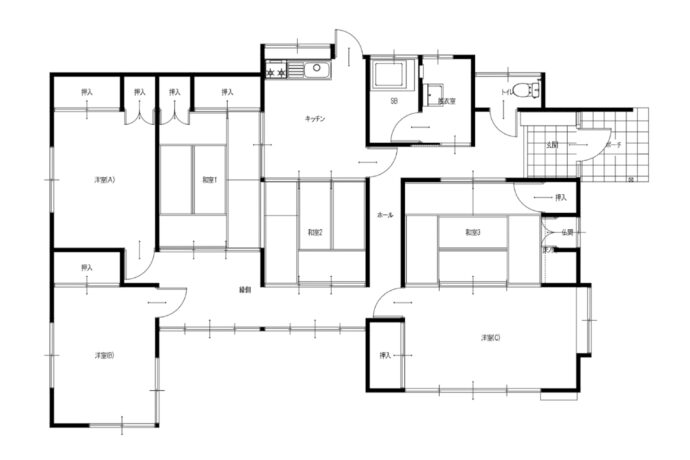
BEFORE
AFTER

矢印のアイコンを左右にスライドするとBeforeとAfterが変化します

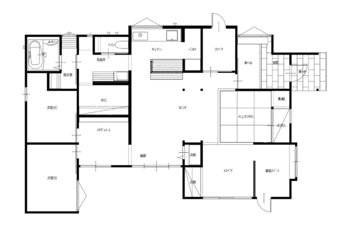
間取り図
6DK→3LDK+WIC+書斎+インナーテラス
外観
外壁塗装で印象もアップデート。
縁側
リビングに光を通し、お庭を一望できる場所に。
バス
寒々しいタイル張りのお風呂から機能性に優れたユニットバスに。
キッチン
デザインや使い勝手にもこだわりの詰まったキッチンに。
洗面化粧台
洗濯物を畳んだり、座って身支度ができる洗面スペース。
寝室
窓を減らして断熱性能をアップ。ペット対策でコンセントは全て高い位置に設置。
植物+ペットスペース
元々増築され段下がりになっていたスペース。水や汚れに強い床材を使い、植物のお手入れやペットがくつろげる場所に。
家族構成 2人家族
カテゴリー 戸建て
築年数 築53年
リフォーム費用 2400万

リフォームのご要望

  • 犬と一緒に過ごせるお家にしたい
  • 築年数がたっているからこそ、耐震、断熱を向上させたい
  • 和洋折衷な雰囲気の内装
  • ご主人様趣味の釣り部屋と奥様趣味の観葉植物スペース

わくわくポイント

  • 古い柱、梁をそのまま再利用
  • 船底天井で解放感を演出
  • 愛犬が出迎えるための小窓

施主さまのコメント

元々日本家屋の雰囲気が好きで、縁側から庭を駆け回る2匹の愛犬を眺めて過ごすのが夢でした。築50年以上のこの平屋と広い庭に出会った時、新築では出せない良い古さでリノベし甲斐があるなと感じました。その趣を大切にしながらも、断熱や耐震工事といった性能向上も徹底し、築古の不安を安心へ変えることができました。
犬の足に優しい滑りにくい床材を選び、私達の趣味のスペースも確保し、犬も人もストレスフリーに過ごせる理想の住まいになりました。愛犬も庭を走り回り、人ものんびりゆっくり暮らせています。

設計士のコメント

築53年の平屋が持つ美しい梁や柱を残しつつ、現代のライフスタイルにあった性能向上を図りました。耐震や断熱の改修は、家全体を直す大掛かりな工事をイメージされがちですが、実は生活の拠点となるリビングを中心に、優先順位を絞った『部分的な高性能化』も可能です。古い建物の良さを守りながら、冬は暖かく、万が一の時も安心な住まいへ。愛犬との暮らしを末永く支えるための、理に適ったリノベーションをご提案しました。
新築には出せないヴィンテージの風合いを楽しみながら、現代の安心感を手に入れる『賢い選択』が形になったリノベーション事例です。

一覧にもどる